




+37 photos

1 / 42
$578,997
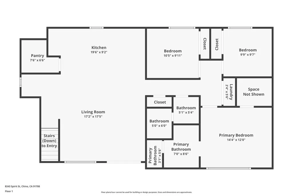
8243 Spirit Street, Chino, CA 91708
3Beds
2Baths
1,493Sq Ft
2Parking
2022Built
269Days Listed
Listed by Carla Morgner, eXp Realty of Southern Calif | 626-434-0805
About This Property
Located in the desirable Morning Sun collection by Lennar at The Preserve in Chino, 8243 Spirit Street is a modern condominium built in 2022 that offers the perfect blend of comfort, functionality, and convenience. This beautifully designed three-bedroom, two-bathroom home spans approximately 1,493 square feet and features a spacious open-concept layout that connects the living room, kitchen, and dining area, flowing effortlessly onto a private deck for indoor-outdoor living. Thoughtful features include central heating and air conditioning, a tankless water heater, walk-in closets, a breakfast bar, and a dedicated laundry room. The home also includes an attached two-car garage, paid-off solar panels, an EV charger, and essential appliances like a washer, dryer, and refrigerator, making it both energy-efficient and move-in ready. Nestled in a gated community, residents enjoy access to top-tier amenities such as a clubhouse, pool, spa, fitness center, tennis courts, sport courts, playgrounds, BBQ and picnic areas, meeting rooms, and scenic nature trails, with a monthly HOA. Conveniently located near Cal Aero Preserve Academy (K8) and Chino Hills High School, and just a short drive to Los Angeles and Orange County, this home offers an ideal lifestyle for modern families.
Virtual Tour
Property Details
- Property Type
- Attached
- Bedrooms
- 3
- Bathrooms
- 2
- Building Area
- 1,493 Sqft
- Living Area
- 1,493 sqft
- Year Built
- 2022
- Stories
- 3.0
- Status
- Active
- Days on Market
- 269
- Cumulative Days on Market
- 228
- Original Price
- $599,000
Location & Neighborhood
What's nearby 8243 Spirit Street, Chino, CA 91708
Nearby Schools
- Cal Aero Preserve Academy0.1 mi
private
Parks & Recreation
- Founders Park0.2 mi
park
- Garden Park0.3 mi
park
- 0.3 mi
Local Amenities
Grocery
- Stater Bros.0.5 mi
POI data updated 2/19/2026
Chino Market Snapshot
154
Active Listings
$725K
Median Price
73
Avg Days on Market
Last updated: Feb 9, 2026
Based on information from California Regional Multiple Listing Service, Inc. as of the date of this data. This information is for your personal, non-commercial use and may not be used for any purpose other than to identify prospective properties you may be interested in purchasing.
$578,997