




+6 photos

1 / 11
$1,299,000
12801 Barbara Ann, North Hollywood, CA 91605
0Beds
49Days Listed
Listed by Ashrif Hammad, COMPASS | 626-298-3030 | MLS# P1-25348
About This Property
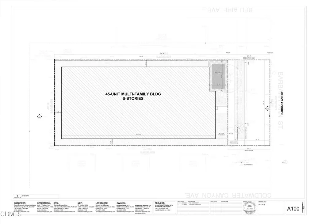
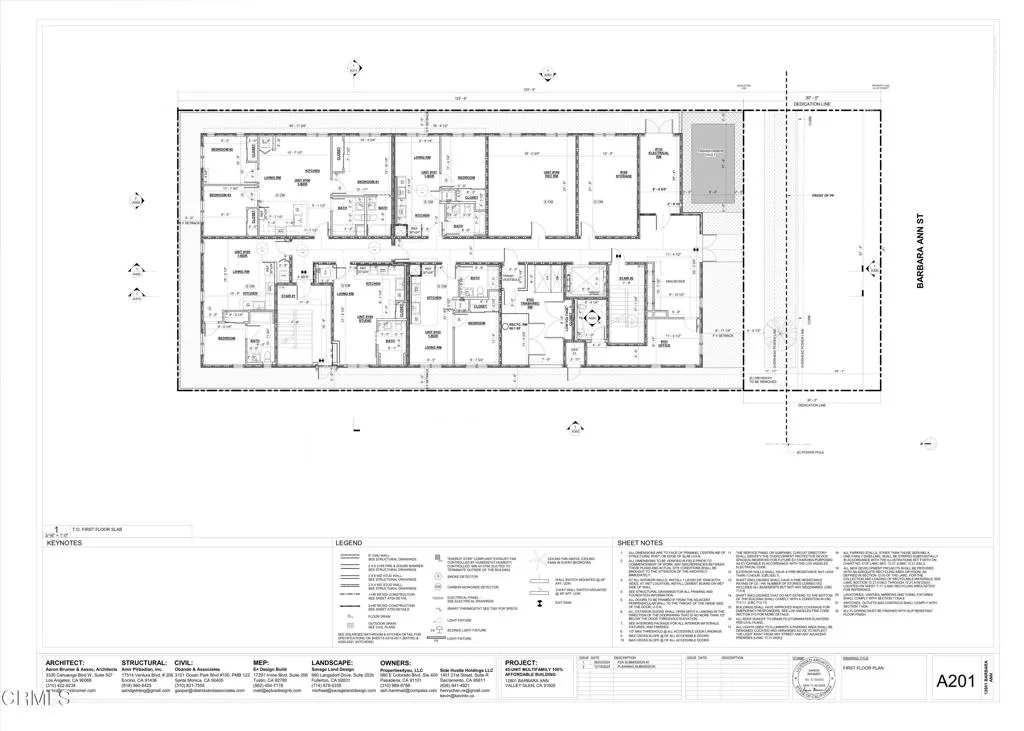
12801 Barbara Ann St, Valley Glen, CA 91605New Affordable Housing Development Opportunity - To be sold with RTI PlansShovel-ready project in Valley Glen featuring 45 units:43 one-bedrooms1 studio1 three-bedroom replacement unitRTI plans and covenant available upon request. Site also offers potential for two future ADUs.A rare chance to acquire a fully entitled, ready-to-build affordable housing development in a strong rental market.
Property Details
- Property Type
- Land
- Bedrooms
- 0
- Bathrooms
- 0
- Building Area
- 0 Sqft
- Living Area
- 0 sqft
- Year Built
- 0
- Status
- Active
- Original Price
- $1,299,000
- MLS Number
- P1-25348
Location & Neighborhood
What's nearby 12801 Barbara Ann, North Hollywood, CA 91605
Nearby Schools
- Coldwater Canyon Elementary School0.4 mi
elementary
- Unnamed School0.4 mi
elementary
- Madison Middle School0.4 mi
elementary
Parks & Recreation
- 0.5 mi
POI data updated 1/31/2026
Last updated: Jan 9, 2026
Keep Browsing
Based on information from California Regional Multiple Listing Service, Inc. as of the date of this data. This information is for your personal, non-commercial use and may not be used for any purpose other than to identify prospective properties you may be interested in purchasing.
$1,299,000