




+15 photos

1 / 20
$499,990
9423 1/2 N. Sepulveda Blvd. Unit 6, North Hills, CA 91343
1Beds
2Baths
1,172Sq Ft
2Parking
2025Built
10Days Listed
Listed by Michael Brunette, Williams Homes Inc. | 970-619-0314
About This Property
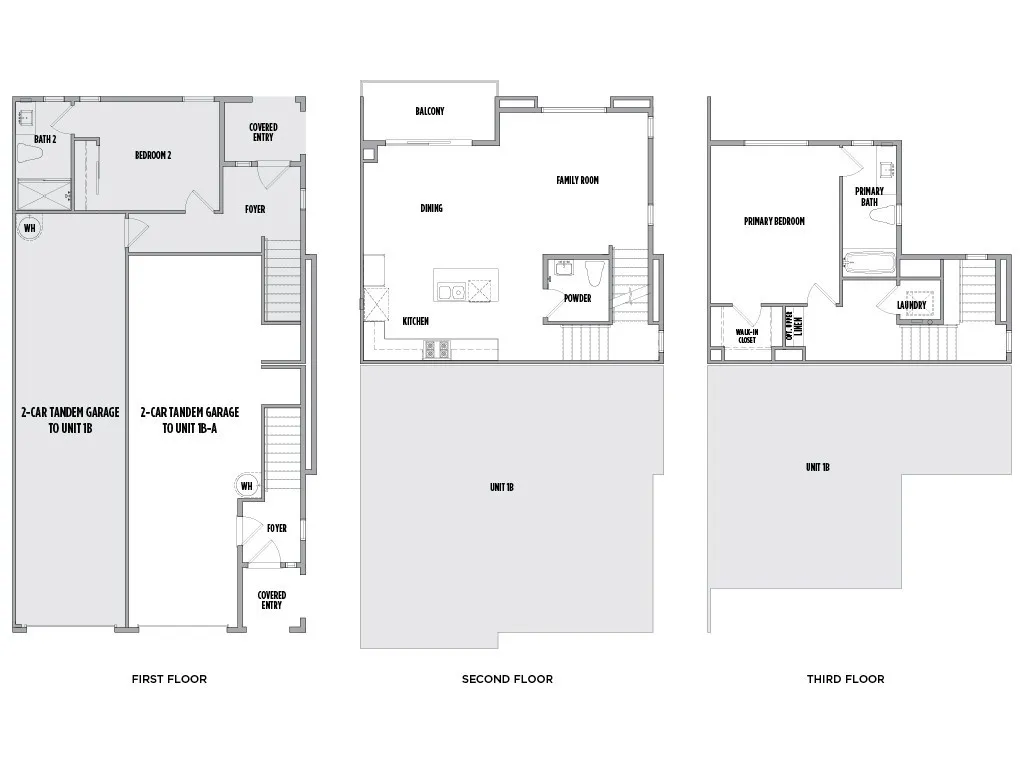
BRAND NEW TOWNHOME! This beautiful home provides quick access to everything you need, whether for work or play. It is conveniently located just minutes from the 405 freeway! Welcome to Valley Villas, a private, gated community offering 58 all-electric, tri-level townhomes designed for modern urban living. This thoughtfully designed townhome features a large oversized 2-car garage and a welcoming foyer on the ground level with beautiful LVP flooring that continues on the stairs leading you to the next level. The second floor is all about open, modern living that features more LVP flooring, upgraded kitchen countertops with a full backsplash, undercabinet lighting, 9-foot ceilings, a bright dining room, and sliding doors that lead to a balcony, perfect for enjoying fresh air and natural light. A powder room on this level adds extra convenience for guests. On the top floor, you'll find the primary bedroom suite, complete with a walk-in closet offering privacy and comfort. The laundry area is conveniently located on this floor as well, making daily tasks a breeze. Come see this home right away to take advantage of our INCENTIVES that will make this home even more affordable! Call our Valley Villas Sales Office (818) 920-8950 for more detailed information.
Property Details
- Property Type
- Attached
- Bedrooms
- 1
- Bathrooms
- 2
- Building Area
- 1,172 Sqft
- Living Area
- 1,172 sqft
- Year Built
- 2025
- Stories
- 3.0
- Status
- Active
- Original Price
- $499,990
Location & Neighborhood
What's nearby 9423 1/2 N. Sepulveda Blvd. Unit 6, North Hills, CA 91343
Nearby Schools
- Sepulveda Middle School0.1 mi
elementary
- Carlos Santana Arts Academy0.2 mi
private
- The Language Grove0.4 mi
elementary
Transit Access
- Sepulveda & Plummer0.1 mi
Bus Stop
- Plummer & Sepulveda0.1 mi
Bus Stop
- Sepulveda & Tupper0.2 mi
Bus Stop
- Plummer & Columbus0.2 mi
Bus Stop
- Plummer & Orion0.2 mi
Bus Stop
POI data updated 2/21/2026
Last updated: Feb 27, 2026
Based on information from California Regional Multiple Listing Service, Inc. as of the date of this data. This information is for your personal, non-commercial use and may not be used for any purpose other than to identify prospective properties you may be interested in purchasing.
$499,990